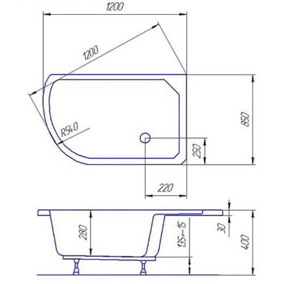
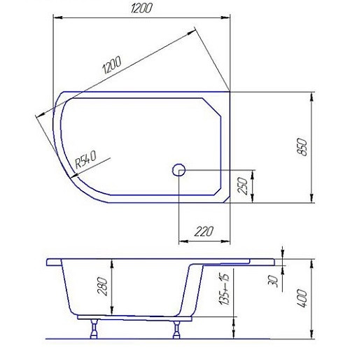
Акриловий кутовий напівкруглий глибокий душовий піддон CARAPELLE 120x85x28У виробництві наших піддонів ми використовуємо технологію литого АКРИЛу. Дана технологія, на відміну від штампування акрилового листа, дозволяє зробити вироби більш якісними та міцними, а також має ряд переваг:- антибактеріальний шар покриття;- легкість (вага піддону до 15кг);- міцність (стійкість до подряпин, фарбників, кислот);- стійкість до механічних ушкоджень;- ремонтопригоднісь;- простоту в установці;Характеристики:Матеріал: Рідкий акрил «Lucite» (Англія)Колір: БілийГабарити: Довжина: 80см. Ширина: 80см Глибина: 25см. Висота: 37см.Колір може будь яким з палітри RAL - під замовлення.

ХАРАКТЕРИСТИКИ
Матеріал піддона
Акрил
Ніжки для піддона
Нємає в комплектації, можна дозамовити
Панель для піддона
Нємає в комплектації, можна дозамовити
По глибині
Глубокий (от 15 до 39 см)
Сифон
Нємає в комплектації, можна дозамовити
Форма піддона
Чверть кола
Ширина
850
Висота
40
Глибина
28
Довжина
850
Гарантійний термін
180
Вага
18
Колір
Білий
Стан
Новий