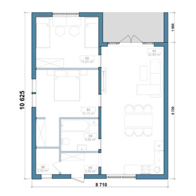
| Площадь: | 92 м2 | |
| Размер: | 10625х8710 | |
| Этажей: | 1 | |
| Спальни: | 2 | |
| Второй свет: | Нет | |
| Санузлы: | 1 |
Это полноценное жильё площадью 92 м², созданное для тех, кто хочет переехать ближе к природе, не теряя при этом комфорта городской жизни. Габариты дома — 10625х8710 мм, что позволяет грамотно разместить все необходимые для життя зоны.
Функциональная планировка включает:
- 2 комнаты — спальни или кабинеты на ваш выбор
- Просторный санузел — комфорт для всей семьи
- Гардеробная — место для порядка и удобства
- Кладовая — удобно для хранения бытовых вещей
- Кухня-студия — сердце дома с местом для ужинов, гостей и уюта
- Терраса — для утреннего кофе, вечерних посиделок и отдыха
Дом оснащений классической двускатной крышей, которая сочетает эстетику и практичность: надежный водоотвод, долговечность и сдержанный стиль, подходящий к любому ландшафту.
Почему стоит выбрать этот домокомплект?
- Типовой проект — не нужно тратиться на проектирование
- Заводское изготовление элементов — точность и скорость монтажа
- Каркасная технология с утеплением — тёплый дом на все сезоны
- Сборка своими руками по инструкции — экономия до 30% на строительстве
- Серийное производство — выгодная цена и проверенное качество
- Срок поставки: 3–4 недели
Комплектация включает:
- Полный набор конструктивных элементов
- Крепеж и монтажные детали
- Пошаговая инструкция по сборке
- Техническая поддержка на каждом этапе
Дополнительные опции:
- Ламинация окон
- Дополнительное утепление пола, стен и крыши
- Внутренние перегородки
- Боковой вход или дополнительное окно
Хотите больше опций?
Оставьте заявку и получите полную консультацию от нашего фахівця!
Этот дом — идеальный выбор для тех, кто мечтает о собственном загородном пространстве без компромиссов в комфорте.
Из дополнительных опций вы можете заказать:
- ламинацию профиля оконных блоков
- материалы для дополнительного утепления стен, пола и крыши
- высушенный камерным способом пиломатериал для монтажа внутренних перегородок и дополнительной площади антресолей.
Срок поставки домокомплекта с момента заказа составляет 3-4 недели.
Материалы внутренних перестенков не входят в комплект (планирование помещений носит рекомендательный характер)
Размер авансового платежа – 70%
*Стоимость дополнительной ламинации оконно-дверных блоков – 10 000грн. (*цена ориентировочная)
*Стоимость дополнительного утепления (50мм) стен, или пола – 12 000грн. (*цена ориентировочная)
*Стоимость дополнительного утепления (50мм) крыши – 15 000грн. (*цена ориентировочная)
*Примерная стоимость свайно-винтового фундамента - 38000грн. (*цена ориентировочная)
За более подробной информацией по поводу приобретения домокомплекта для самостоятельной сборки загружайте Презентацию или обратитесь в наш отдел продаж 050 924-24-20.
В настоящее время существует и другие домокомплекты:
Барн Хаус 42 м2
А-фрейм 52 м2
Дабл Барн 74 м2
Флэт Хаус 58 м2
Выбирайте свой домокомплект, и уже сегодня живите в собственном доме.
Пример сборки домокомплекта БАРН ХАУС
-
Возможно ли построить каркасный дом самому?
-
Сколько лет прослужит каркасный дом?
-
Грызуны в каркасном доме?
-
Огнестойкость каркасного дома?
-
Какая стоимость строительства каркасного дома "под ключ"




















-200x200.jpg)
















