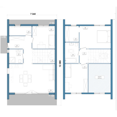
| Площа: | 160 м2 | |
| Розмір: | 12582*7260 | |
| Поверхів: | 2 | |
| Спальні: | 3 | |
| Друге світло: | Так | |
| Санвузли: | 2 |
Каркасний будинок NORWAY можна збудувати своїми руками!
Площа: 160 м²
Поверховість: 2 поверхи
Тип: каркасний будинок
Призначення: заміський будинок для постійного проживання або дачний котедж
Архітектура та планування
Проєкт NORWAY поєднує в собі скандинавську стриманість, функціональність та просторову свободу.
Будинок має чіткі геометричні лінії, панорамні вікна та відкриту терасу, що підкреслює контакт з природою.
На першому поверсі розташовані:
Простора вітальня-кухня-їдальня (28,45 м²) з другим світлом;
Майстер спальня з власною гардеробною;
Санвузол, технічне приміщення та коридор;
Тераси загальною площею понад 7 м² (з навісом).
На другому поверсі:
Дві затишні спальні;
Санвузол;
Хол з видом на вітальню через друге світло.
Основні характеристики
Загальна площа: 152,7 м²
Житлова площа: 110,55 м²
Площа терас: 7,4 м²
Конструкція: енергоефективна каркасна система
Покрівля: двосхила, сучасний дах у скандинавському стилі
Матеріали: дерев’яний каркас, утеплення мінеральною ватою, фасад – дерев’яна дошка або композит під дерево
Переваги домокомплекту
✅ Швидкий монтаж
✅ Можливість збирання будь-де в Україні
✅ Високий рівень теплоізоляції (економія на опаленні до 40%)
✅ Готовий до внутрішнього оздоблення відразу після збірки
✅ Сучасна архітектура у стилі Scandinavian Eco Loft
Ідеальний вибір для:
сімей з дітьми, які шукають комфорт за містом;
забудовників, котрі цінують ефективність і стиль;
туристичних комплексів та кемпінгів преміум-класу.
Обирайте свій домокомплект, та вже сьогодні живіть у власній оселі.
Приклад складання домокомплекта БАРН ХАУС






























